>
>
>
>
>
>
>
>
>
>
>
>
>
>
>
>
>
>
- 外観
- その他
- その他
- その他
- その他
- その他
- その他
- その他
- その他
- その他
- その他
- その他
- その他
- その他
- その他
- その他
- その他

営業時間9:00~18:00 (定休日/水曜日)
|
店舗
陸ノ町戸建 - |
|||
|---|---|---|---|
| 賃料 | 110,000円 | 管理費/共益費 |
管理費:なし 共益費:なし |
| 敷金 | 110,000円 | 礼金 | 220,000円 |
| 仲介手数料 | 1ヶ月 | ||
| その他経費 | |||
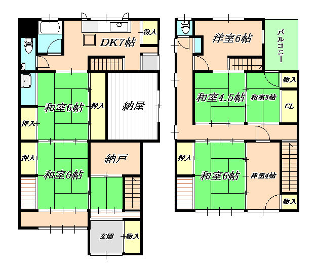
| 延床面積 | 107.10㎡ (32.39坪) | 構造・階数・階 | 木造 地上2階建 地上1階部分 |
|---|---|---|---|
| 築年月 | 1951年3月 | 駐車場 |
| 所在地 | 兵庫県神戸市垂水区陸ノ町1-12 地図 | 交通 |
JR山陽本線 垂水駅 徒歩5分 |
|---|
| 現況 | 空室 | ||
|---|---|---|---|
| 契約種類 | 普通契約 | 契約期間 | 2年 |
| 用途地域 | - | 取引態様 | 専任媒介 |
| 更新料 | 無 | 保証人 | 指定なし |
| 保証会社 | 必加入 / USEN保証 / 初回保証料: - / 月額保証料: - 初回保証料 総賃料の100% 更新料11,000円 引落手数料440円/月 |
||
| 保険 | 加入無 / - / - | 入居可能日 | 即日 |
| 設備 | 地震対策:なし、管理形態:不明、飲食店:可 | ||
| 備考 | 【USEN保証】初回保証料 総賃料の100% 更新料11,000円 引落手数料440円/月 【USEN火災保険】別途契約 ※近隣についてお伝えしたいことがございます ※短期解約※6ヶ月以内の解約不可。1年未満2ヶ月、2年未満1ヶ月の違約金とします。 | ||