>
>
>
>
>
>
>
>
>
>
- 現地外観写真
- その他
- その他
- その他
- その他
- その他
- その他
- その他
- その他
- その他

営業時間9:00~18:00 (定休日/水曜日)
|
事業用
王居殿2丁目貸家 |
|||
|---|---|---|---|
| 価格 | 1,800万円 | ||
| 月間収入目安 | 18万円(税込み) | 年間収入目安 | 210万円(税込み) |
| 仲介手数料 | - | その他経費 | |
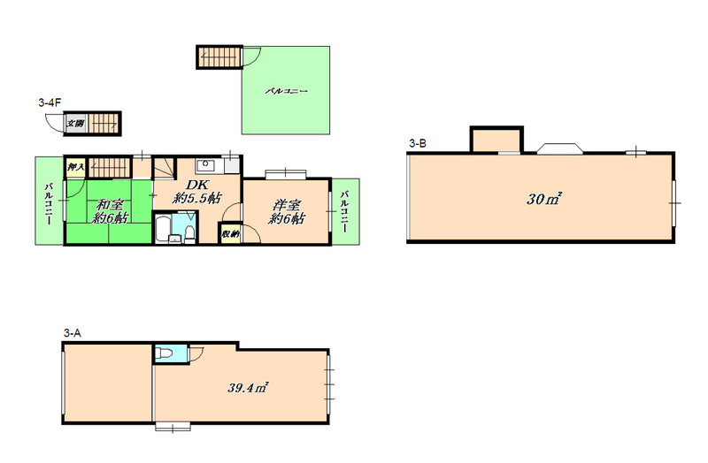
| 間取り | |||
|---|---|---|---|
| 土地面積 | 90㎡ (27.22坪) | 私道面積 | - |
| 建物面積 | - | 階数 | 4階建 |
| 構造 | 木造 | 築年月 | 1966年7月 |
| 駐車場 | - | ||
| 都市計画 | 市街化区域 | 地目 | 宅地 |
| 用途地域 | 1種中高層 | ||
| 建蔽率 | 60% | 容積率 | 150% |
| 権利 | 所有権のみ | ||
| 権利期間 | - | 地代 | - |
| 所在地 | 兵庫県神戸市垂水区王居殿2丁目11-13 地図 | ||
|---|---|---|---|
| 交通 |
JR山陽本線 垂水駅 |
||
| 小学校区 | - | 中学校区 | - |
|---|---|---|---|
| 現況 | 賃貸中 | 引渡し日 | 相談 |
| 取引態様 | 仲介(一般媒介) | ||
| 設備 | |||
| 備考 | |||